Mmmm..... cookies...

Afdeling

Skjoldgården
152-0

Skjoldgården 6. Etage/dør: st. tv.
Skjoldgården 36. Etage/dør: 2. tv., st. tv.

Boliginfo

Adresser

Skjoldgården 2 - 50,
7500 Holstebro

Boligtype

Antal boliger

3

Energimærke

C

Andet

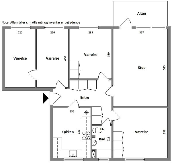
Altan: Ja
Elevator: Nej
Husdyr tilladt: Ja

Værelser

5

Størrelser

100 m2

Husleje

6947 kr.

Indskud

12190 kr

Ventetid

0 mdr. - 3 mdr.

Skriv dig op her!